
With years of industry experience under our belts, we take pride in being your trusted partner in construction, offering a wide range of scaffolding solutions tailored to your specific needs. From residential renovations to large-scale commercial developments, we've got you covered.


Our experienced team works closely with you to understand your project requirements and develop a customized scaffolding solution that maximizes safety and efficiency.

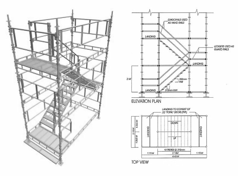
Our skilled technicians handle the installation process with precision and care, ensuring that your scaffolding is erected safely and securely according to industry standards.

We offer a wide range of scaffolding equipment available for rent, including tube and clamp scaffolding, system scaffolding, and specialty scaffolding solutions, allowing you to access the tools you need without the burden of ownership.
At Level Up Access, our goal is simple: to become the industry's most trusted partner by expanding to all jobs and building lasting connections that drive mutual success

Our unwavering commitment to safety, quality, and customer satisfaction ensures your project's success from start to finish
We begin by understanding your project needs through a detailed consultation. Our experts assess the job site, discuss requirements, and provide tailored recommendations to ensure the best solution.
Our skilled team handles the complete installation process, ensuring that the scaffolding is set up safely, efficiently, and in compliance with all regulations. We prioritize minimal disruption to your project timeline.
After installation, we offer ongoing support and maintenance to ensure the scaffolding remains secure and effective throughout your project. We're always available to address any concerns and make necessary adjustments.
What sets Level Up Access apart is our unwavering commitment to excellence in every aspect of our service.

